Реконструкция здания Галереи «Виктория»

Реконструкция здания Галереи «Виктория»

ДО ВЕСНЫ 2026

Галерея «Виктория»

Масштабная трехлетняя реконструкция Галереи «Виктория» подходит к концу. Мы попросили наших архитекторов и дизайнеров рассказать, какой будет новая Галерея «Виктория», которая откроет свои двери для посетителей весной 2026 года.

Виталий Стадников

архитектурная студия РБТЫ


Мы создаем многоуровневое анфиладное пространство галереи, с основным входом со стороны набережной. Выставки будут группироваться вдоль просторных лестниц, выходящих в освещенный атриум. Они ведут посетителя по увлекательному пути через множество промежуточных уровней на кровлю здания с садом скульптур и видом на Волгу.

Архитектура галереи функциональна, но торжественна. Она раскрывает красоту конструктивной организации здания, ранее скрытую декорациями. Открытые перетекающие пространства пронизаны колоннами, а оконные проемы максимально раскрывают здание наружу. Весь первый этаж становится прозрачным, заставляя парить массивный объем выставочных помещений.

Фасад будет отделан фибробетонными панелями индивидуального дизайна с тремя типами поверхностей, определяющими три типа физического и временного пространства:

- Панели с вертикальными «каннелюрами» отражает традицию и корни.

- Панели с горизонтальными цилиндрическими элементами — прочтение уходящей современности. В их основе лежит архетипическая плитка Алвара Аалто, пионера модернизма.

- Плоские панели — это чистый лист и свобода выражения.

Рената Насыбуллина

архитектурная мастерская link.bureau


Для нас было важно сделать интерьер, который бы максимально отражал ценности Галереи «Виктория» и ее локальную идентичность.

Основой концепции интерьера стала река — разная, изменчивая. Как и Галерея «Виктория» она меняется сама, меняет все вокруг, питает и наполняет окружающее. Река — это отсутствие иерархии, единая гармоничная система, в которой нет главного и второстепенного. А еще река — это про Волгу и локальность.

Рекой-артерией станет лестница, соединяющая все этажи здания. Мы постарались создать гибкое текучее пространство без жесткого зонирования с горизонтальным взаимодействием с рекой, городом, зрителем, где функции «обмениваются» между собой общими элементами.

Данный подход предполагает гибкость как самого пространства, так и его технического оснащения. Интерьеры легко переоборудуются под актуальную задачу: объединяются в большие залы для мероприятий, делятся на серию перетекающих пространств или отдельные изолированные зоны, при необходимости увеличивается или уменьшается площадь развески.

Целостность интерьерного решения в сравнительно небольшом пространстве с большим разнообразием функций и элементов была достигнута за счет трех составляющих: общей цветовой гаммы, модульности, и единообразия деталей. Светлые тона и натуральные материалы станут нейтральным фоном для событий, которые будут происходить в галерее.

1 ЭТАЖ

Главный вход в галерею «Виктория» будет с улицы Максима Горького. Здесь расположатся рецепция, гардероб, книжный магазин, кофейня MUWA и детская студия.

Бывшее пространство Victoria Underground будет переформатировано. Здесь появится Художественная Мастерская, Шелкографическая мастерская и Мастерская керамики с профессиональным гончарным оборудованием. Малый выставочный зал — «Зал А» (48м²) будет представлять результаты работ мастерских и персональные и эксперементальные проекты.

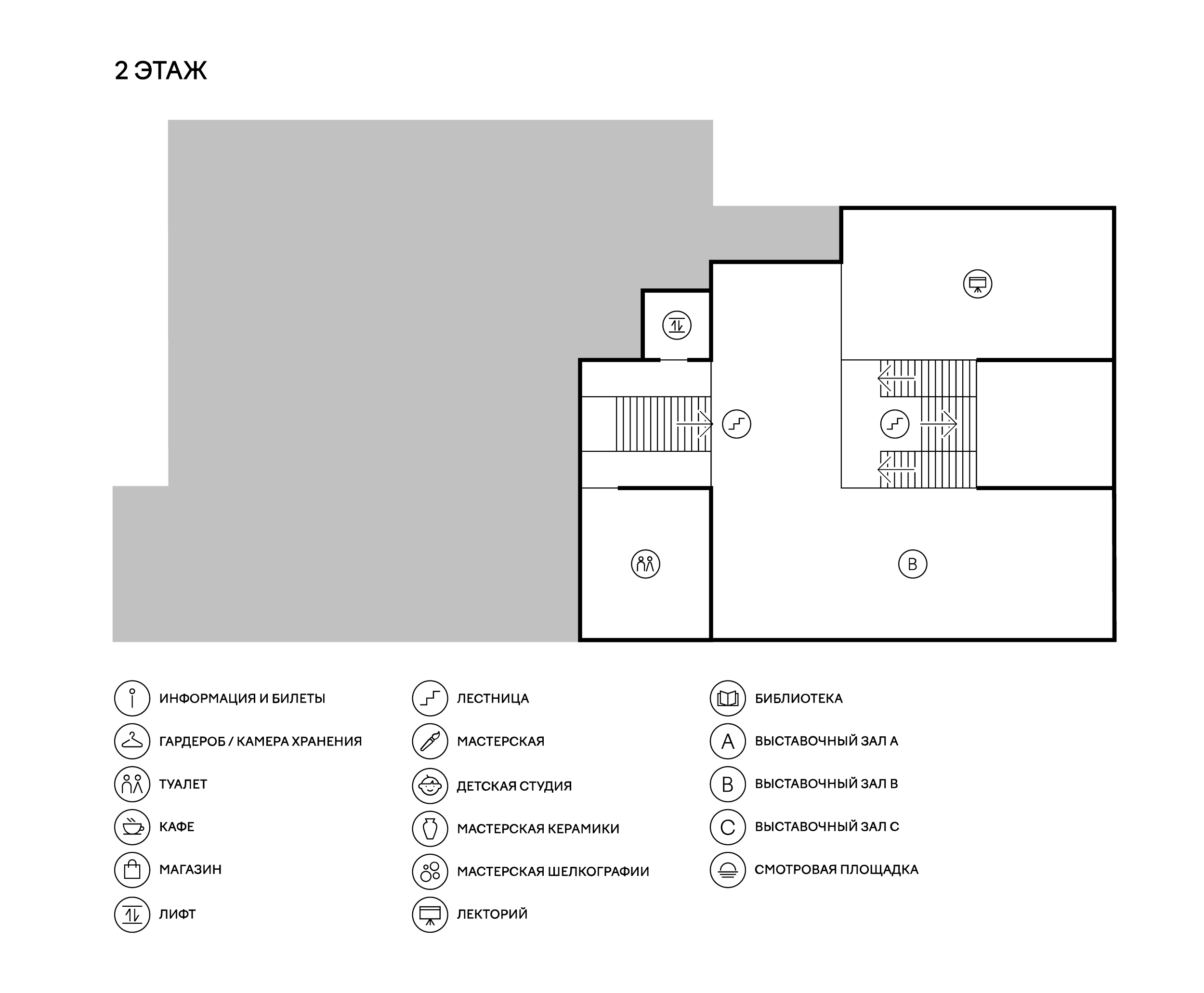
2 этаж

На втором этаже появится отдельное выставочное пространство «Зал B» площадью 200 квадратных метров. В левом крыле этажа расположится лекторий на 60 посадочных мест.

3 этаж

Основным выставочным пространством останется 3 этаж, где располагается «Зал С». В ходе реконструкции площадь экспозиции увеличится до 335 квадратных метров. Лестница из выставочного зала ведет на крышу здания, где в теплое время года будет открыта смотровая площадка и экспозиционное пространство для инсталляций. В помещении бывшего Банкетного зала расположится Библиотека, где посетители смогут изучить литературу по современному искусству с видом на Волгу.

О реконструкции

С мая 2023 года в здании Галереи «Виктория» на Некрасовской, 2 началась масштабная реконструкция. «Виктория» давно ушла от концепции частной коммерческой галереи к формату междисциплинарной культурной институции. Мы хотим пересобрать наше пространство в современную и функциональную площадку актуальной культуры и искусства. Обновленное здание будет отвечать всем современным музейным требованиям в сфере безопасности, климата и инклюзивности. Галерея «Виктория» станет одной из немногих площадок в Самаре, где будет технически возможно выставить шедевры мирового уровня.

Обновленное здание станет уникальной точкой архитектурного ландшафта центра Самары, а новая концепция пространства будет более открытой и доступной горожанам и туристам. Мы создадим новое место силы, где будут не только выставляться, но создаваться произведения искусства европейского уровня.

Строительные работы по реконструкцию завершатся в декабре 2025 года. Открытие обновленной «Виктории» состоится весной 2026 года.

Архитектура здания: архитектурная студия РБТЫ.

Дизайн интерьеров: архитектурная мастерская link. bureau, Владимир Изаксон, Елизавета Усачева.

О Галерее «Виктория»

Галерея современного искусства «Виктория» — независимая культурная институция, основанная в 2005 году в Самаре предпринимателем Леонидом Михельсоном. Миссия галереи — развивать культурную среду города через выставочную, просветительскую и исследовательскую деятельности.